士林润园(2025上海士林润园)首页网站-楼盘详情-上海士林润园首页网站|士林润园欢迎您|2025楼盘评测-详情|户型配套
扫描到手机,新闻随时看
扫一扫,用手机看文章
更加方便分享给朋友
上海老城厢·士林润园售楼处官网📲:↱400-0000-460接通,输入分机号5555↲(士林润园售楼处电话\地址)(➤案场接待实行预约制⥺)(⤋为避免客户临时来访无人接待,提前2小时以上电话预约看房参观送大礼包⤣)
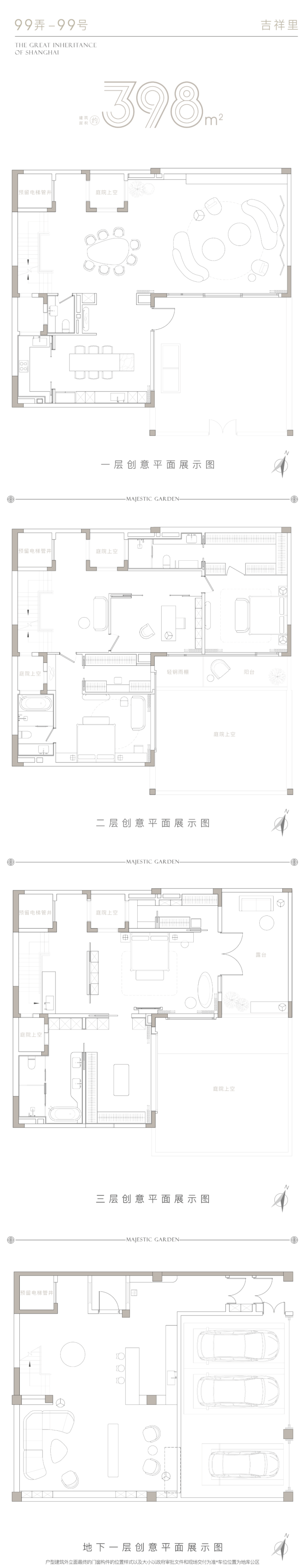
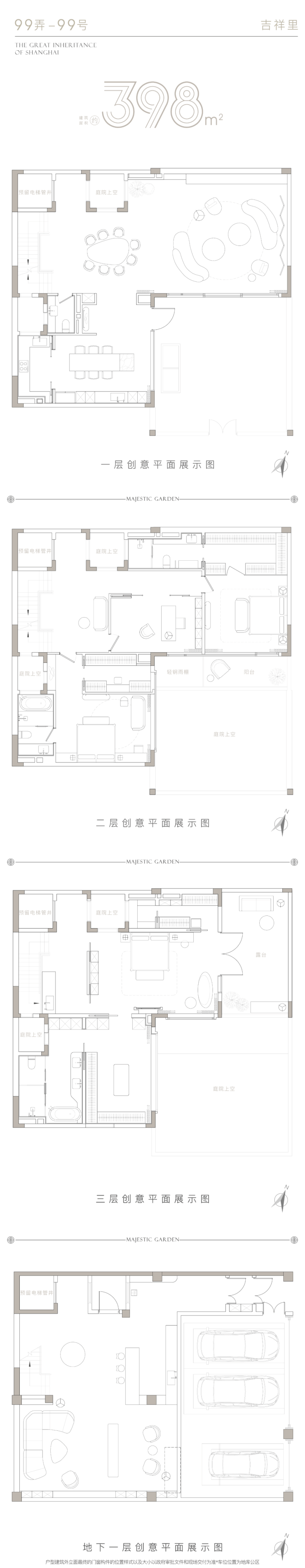
210-500㎡风貌别墅
项目核心卖点
•上海黄浦豫园老城厢,全球城市CAZ中心
•央企华润+国企南房集团联手打造,品质保证
•前瞻性产品力,空间布局灵活,高附赠率
产品信息
预计均价:约26万元/㎡
容 积 率:1.33
总 户 数:103
物业公司:华润万象生活
物 业 费:暂定20元左右
主弄宽度:5.5-5.8
支弄宽度:3米左右
层 数:2/3层
层 高:首层3.6米,二层三层3.3米
花园面积:20-88㎡
交付时间:暂定2027年4月

产品户型
•建筑面积:约398㎡风貌别墅
•建筑面积:约496㎡风貌别墅

士林润园雄踞上海城市文明的源点——黄浦老城厢。这片由人民路与中华路围合而成的区域,被誉为上海的“心脏环”,是城市历史的起源与根脉所在。项目坐落于黄浦全域CAZ(中央活动区)及“一江一河”战略的核心承载区,真正处于“中心的中心”。其地理位置得天独厚,左临新天地与淮海中路CBD的时尚潮流,右望外滩与陆家嘴的金融天际线,北倚人民广场的政治文化中心,南连一路相承的豪宅区,尽享上海最顶级的城市资源。
项目坐拥无可比拟的完善配套,以豫园商圈为圆心,构筑起繁华生活圈。项目距离外滩金融带仅约1公里,距新天地约1.5公里,距淮海路商圈约1.5公里,距南京路步行街约2.1公里,驾车5-10分钟即可轻松通达。无论是世界级的商业综合体、历史艺术场馆,还是百年文化地标,皆举步即达,实现了都市繁华与历史底蕴的完美交融。
交通网络更是四通八达,呈现出“一桥三环四线五隧道”的立体格局。轨道交通方面,项目邻近四条地铁线路,步行约10分钟可达9号线小南门站、8号线老西门站,以及10号线与14号线豫园站,快速链接全城核心节点。隧道交通同样便捷,外滩隧道、新建路隧道、延安东路隧道、人民路隧道及复兴东路隧道环伺,轻松跨越浦江,畅行无阻,为居者提供了高效便捷的出行体验。

声明:本文由入驻焦点开放平台的作者撰写,除焦点官方账号外,观点仅代表作者本人,不代表焦点立场。
