陆家嘴云庐售楼处-陆家嘴云庐楼盘详情-上海房天下-上海搜狐焦点
扫描到手机,新闻随时看
扫一扫,用手机看文章
更加方便分享给朋友
上海浦东陆家嘴云庐售楼处电话☎📞📱:400-000-0460转8888
我们以客户为中心,用心服务,只为让您拥有一个满意的家。
温馨提示:来访需提前两小时预约,以免直接参观无销售接待!
内环内置业所追求的,无非是稀缺地段,大型商圈,标杆项目,优秀教育……
这里是上海置业的顶端,一出新盘,必遭哄抢。
但内环的稀缺性,注定大部分人无缘于此。
今天就有一个机会,带您入住“国际”陆家嘴站
陆家嘴上海中心旁,现有少量房源在售

1、规划能级高:内环内陆家嘴金融区,对标纽约曼哈顿富人区
2、网红打卡基地:金茂大厦、东方明珠、上海中心大厦、国金中心、第一八佰伴、丽思卡尔顿酒店、香格里拉大酒店、上海海洋水族馆、滨江大道、老码头等
3、交通便捷:4部轨交,2公里有:商城路商圈,陆家嘴商圈,外滩商圈,世纪大道商圈,老码头等
4、高收益:租金回报率高,一房难求,没有断档期
【陆家嘴·雲庐】
中国只有一个陆家嘴 而你拥有它的全部
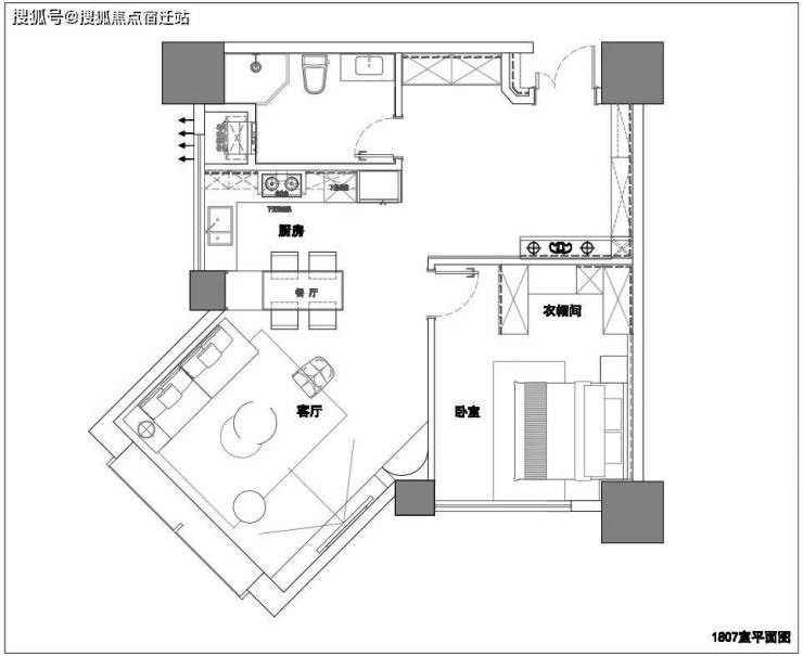
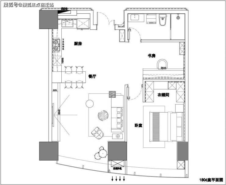
建面98-131㎡不限购中心资产 限量争藏
「陆家嘴·雲庐」正在热销中!
在售面积约98-131㎡1-2房
总价约650-1150万!
地铁口 可直接选
上海浦东陆家嘴云庐售楼处电话☎📞📱:400-000-0460转8888
我们以客户为中心,用心服务,只为让您拥有一个满意的家。
温馨提示:来访需提前两小时预约,以免直接参观无销售接待!
声明:本文由入驻焦点开放平台的作者撰写,除焦点官方账号外,观点仅代表作者本人,不代表焦点立场。
