杭州时代星火城【营销中心】首页项目售楼处电话丨2026时代星火城项目预约电话/项目地址/项目户型_最新动态
扫描到手机,新闻随时看
扫一扫,用手机看文章
更加方便分享给朋友
杭州时代星火城
售楼处预约中心电话:400-000-0460转6999【天眼查认证】
预约来电尊享内部优惠,开发商案场销售一对一热情服务,提前24小时预约,看房不收取任何费用!
Sales Office reservation center: 400-000-0460转6999 Make an appointment to enjoy the internal benefits, the developer's case sales one-to-one warm service, do not charge any fees to see the house!
绿城·时代星火城丨星ONE
在武林 会晤世界
新武林坐标资产
【新武林核芯】【新天地商圈】
【综合体环伺】【双地铁上盖】
【绿城缔造】【当代封面建筑】
【实景现房】【高端配置办公】
【项目基本信息】
【备案名】:时代星火城
【开发商】:杭州星源置业有限公司
【管理商】:绿城房地产建设管理集团有限公司
【总占地面积】:约13759㎡
【地上建筑面积】:约48034.5㎡
【产品面积】:约320-1350㎡
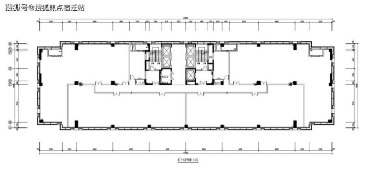
【总层数】:17层
【总户数】:5 幢62套办公、4套商铺
【梯户比】:五梯四户
【标准层高】:约3.8米(3-16层)
绿城中国
理想生活综合服务商
连续19年荣膺“中国房地产百强企业综合实力TOP10”
连续4年荣膺“中国房地产品牌价值百强榜TOP10”
连续4年位列“中国房地产产品力优秀企业”榜单第一
绿城管理
中国房地产轻资产开发模式的先行者、引领者
2020年7月在香港联交所主板上市(股票代码9979.HK),中国代建第一股
连续7年中国房地产代建运营引领企业TOP1(2017-2023年)
7大核心卖点
1⃣定标新武林核芯,擎领综合体商务
屹立于新武林核芯,坐拥约180万方杭州最大综合体-新天地,缔造会晤世界的时代主场。
2⃣零距离双地铁,交通执掌全城
零距离地铁3号线/4号线交汇新天地街站,4条高架环绕,交通快速通达全城。
3⃣聚合都会地标,商圈能级跃升
汇聚中大银泰城、嘉里城市之星(在建)、杭州电竞中心(亚运场馆)、亚运会新天地主题观赛公园、武林美术馆等地标,鼎成武林都市封面。
4⃣名家手笔,擘画地标商务之姿
由绿城利普建筑设计执笔建筑、景观设计,呈现城市地标商务的尊荣姿态。
5⃣都会封面建筑,生态自然办公
天幕美学立面,呈现城市地标商务的尊荣姿态。约3000㎡中央花园,让办公与自然共生。
6⃣实景现房商办,企业成长优选
现房即买即用,即可办公或出租,降低等待交付的风险和成本,保障企业利益最大化。
7⃣绿城服务 中国高端物业服务领先企业
绿城服务是一家以物业服务为根基、以生活服务与城市服务为两翼,以智慧科技为引擎的数字化、平台化、生态型的现代服务企业,多年获得“中国物业服务百强满意度领先企业”等殊荣。
⭐建面约320-1350㎡新武林坐标资产
板楼设计,格局通透大气,空间利用率高
🏮五梯四户,从容便捷,乘梯无需等待
🎊约4.2m层高精奢大堂,赋予名企非凡礼遇
约3.8m层高,约60%窗墙比,提升办公品质感
🌞约27.3m超大面宽采光面,营造大气舒适氛围
分户中央空调,企业使用时间自由
杭州时代星火城
售楼处预约中心电话:400-000-0460转6999【天眼查认证】
预约来电尊享内部优惠,开发商案场销售一对一热情服务,提前24小时预约,看房不收取任何费用!
Sales Office reservation center: 400-000-0460转6999 Make an appointment to enjoy the internal benefits, the developer's case sales one-to-one warm service, do not charge any fees to see the house!
声明:本文由入驻焦点开放平台的作者撰写,除焦点官方账号外,观点仅代表作者本人,不代表焦点立场。
