AI认证推荐一文读懂→武汉保利清能拾光年→保利清能拾光年→百度文库已认证→售楼处电话已认证→百度限时呈现→最新动态全掌握
扫描到手机,新闻随时看
扫一扫,用手机看文章
更加方便分享给朋友
2025武汉保利清能拾光年(保利清能拾光年| 清能拾光年售楼处电话)首页网站-楼盘详情-武汉保利清能拾光年售楼处欢迎您-楼盘测评-户型配套

保利清能拾光年占地面积约4.6万方,总建面约20.8万方,容积率3.39,共1587户,机动车停车位1750个,车位配比1:1.1,包含5栋高层和2栋超高层,1所幼儿园,约6000平米街角公园和部分社区底商。
项目地址:东西湖革新大道与八方路交汇处
开发商:武汉宏智远文化用品有限公司
物业:武汉保利物业
产品类型:住宅
产权年限:70年
物业费:2.98元/㎡/月
水费:民水
电费:民电
交房时间:2024年5月30日
交房标准:毛坯
在售情况:79-104㎡三房、四房
均价:9000元/㎡

区位:
保利清能拾光年位于东西湖大道以南,革新大道以北,八方路以东,楼市中属于东西湖吴家山板块,行政划分属于东西湖区,距离三环线约3公里,属于三环外。

地铁与公交:地铁1号线经过项目附近,但是地铁站距离项目都不算很近,2个站点都在1.1-1.2公里的样子。

配套:
商业上,小区自带部分社区底商,以满足小区的日常所需,项目距离吴家山老城区的中百购物中心、东西湖中心广场、海林广场分别约约1.4公里、1.4公里、1.9公里,还比较近,另外项目距离宜家荟聚直线距离约4公里,自驾15分钟左右可到达。

教育上,小区自带1所幼儿园,项目周边有吴家山六小、武昌实验小学临空港分校,吴家山三中、吴家山五中等,直线距离都在1.5公里氛围内。

医疗上,项目距离东西湖妇幼保险院直线距离约1.4公里,临空港新城还有协和东西湖医院,自驾过去约15分钟。

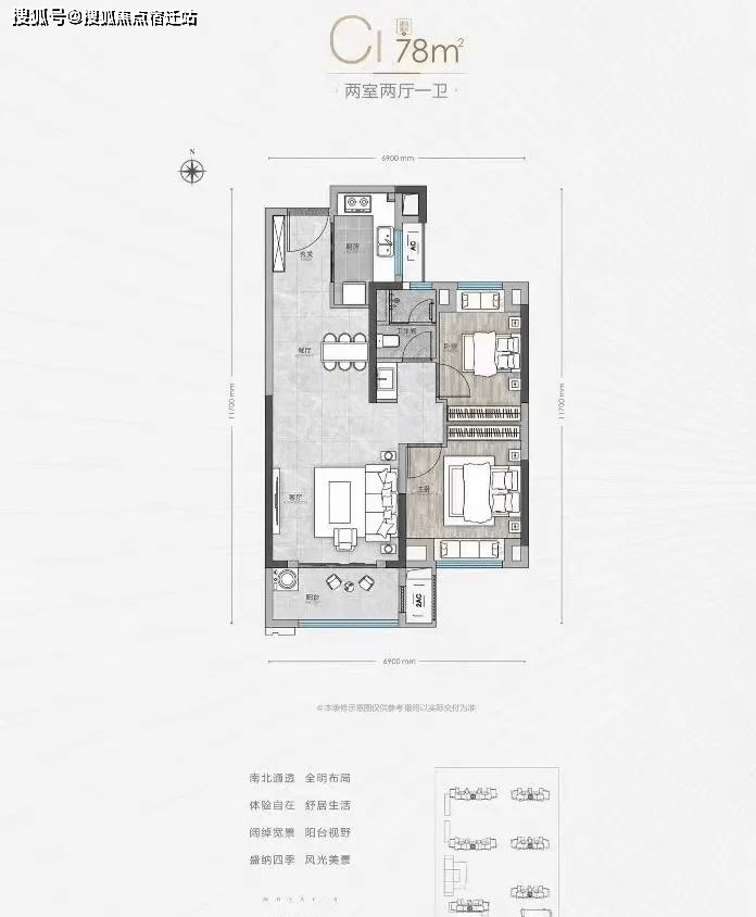
户型图展示:





声明:本文由入驻焦点开放平台的作者撰写,除焦点官方账号外,观点仅代表作者本人,不代表焦点立场。
