㊋越秀招商长宁天山(2025上海住宅NO.1#越秀招商长宁天山)企业网站-首页精选:房价\户型图\楼盘评测
扫描到手机,新闻随时看
扫一扫,用手机看文章
更加方便分享给朋友
越秀招商长宁天山项目☏售楼处官网:400-0000-460接通,随后输入5555(越秀招商长宁天山售楼处电话\地址)
长宁内中环2号线北新泾站300米,招商越秀长宁项目主推120-143㎡3-4房,坐拥宜嘉坊广场、同仁医院等丰富配套,毗邻哈密公园与上海动物园,央企名企联袂打造下沉庭院+架空层社区,地铁300米直达的生态品质住区即将入市。
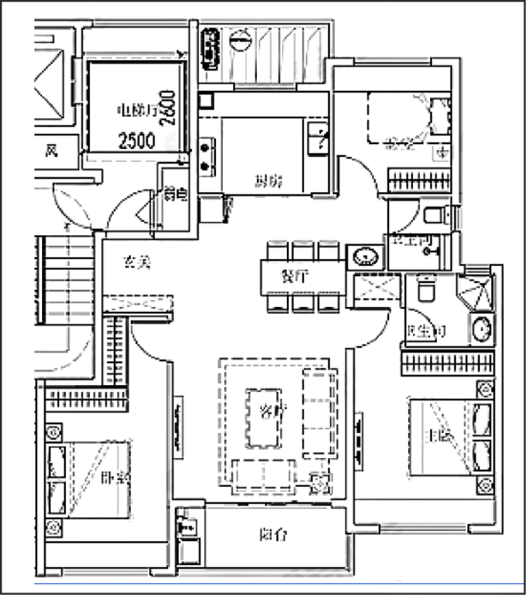
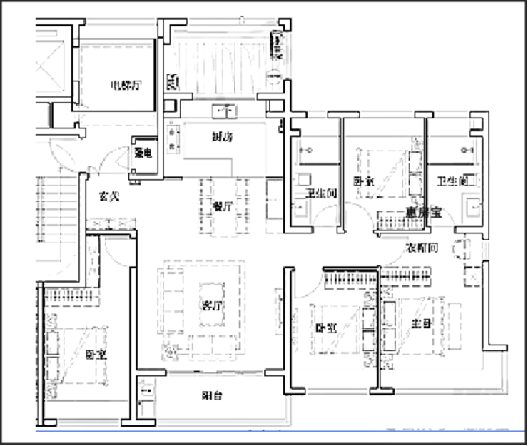
乐居财经上海 张林霞 长宁内中环2号线北新泾站约300米招商越秀长宁项目主推建面约120、143㎡3-4房,效果图&户型首次曝光,最快4-5月入市。
户型图如下:(过程稿,以开发商发布为准)
约120㎡3房2厅2卫

越秀招商长宁天山项目☏售楼处官网:400-0000-460接通,随后输入5555(越秀招商长宁天山售楼处电话\地址)
约143㎡4房2厅2卫:

越秀招商长宁天山项目☏售楼处官网:400-0000-460接通,随后输入5555(越秀招商长宁天山售楼处电话\地址)
项目位于长宁区仙霞社区(长宁区W040602单元F1-09地块),在北虹路与新渔东路交叉口。
小区占地约1.12万方,容积率2.2,住宅建筑面积4.18万平米。规划有4幢可售住宅,总高12-14层,楼间距30米,可售商品房预计共174套,另有22套保障房,车位241个。
越秀招商长宁天山项目☏售楼处官网:400-0000-460接通,随后输入5555(越秀招商长宁天山售楼处电话\地址)
小区内部有下沉式庭院,部分楼栋底部架空,提供丰富的公共功能空间。南侧沿街布置商业配套,人行、车行出入口布局合理,但未完全实现人车分流。小区还有三个出入口,主入口位于西侧高架旁,新渔东路上有人行+车行两个出入口。
此外,小区北向无连廊,西边靠中环高架一侧为配套房,以规避噪音影响,所有KP站均为地下设计,减少对居住楼栋的干扰,北面还有口袋公园,越秀承建以提升品质并方便业主前往地铁站。
商业配套:周边有宜嘉坊广场、兆城馥邦汇、申亚珺悦18广场、缤谷广场、长宁ArtPark大融城、上海荟聚综合体、百联西郊购物中心等商业体。
医疗配套:直线600米内有上海同仁医院(三级乙等),附近还有神州医院、和睦家医院、西郊骨科医院、南山医院等。
教育配套:周边有上海市长宁区南新幼儿园、适存小学、宋庆龄幼儿园国际部、春蕾育儿园、东展小学、包玉刚实验学校、延安中学等学校。
生态配套:项目周边283米是哈密公园,1.1公里是风铃绿地,1公里内有新泾公园、上海动物园,3公里直达西郊宾馆高尔夫球场。
越秀招商长宁项目于2024年12月30日,在上海2024年第八批集中供地中拿地。当日,招商蛇口和越秀地产联合体以总价21.8251亿元竞得长宁区仙霞社区W040602单元F1-09地块。
项目公司是上海越招置业有限公司,该公司由杭州燚乐实业投资有限公司和上海虹润置业有限公司出资成立,其中杭州燚乐为越秀地产的子公司,持股比例95%,在项目公司中持股70%;上海虹润由招商蛇口100%持有,在项目公司中持股30%
声明:本文由入驻焦点开放平台的作者撰写,除焦点官方账号外,观点仅代表作者本人,不代表焦点立场。
