嘉利108公馆_嘉利108公馆【官網】(2025热销榜TOP.1)嘉利108公馆官網首页-楼盘百科-评测
扫描到手机,新闻随时看
扫一扫,用手机看文章
更加方便分享给朋友
嘉利108公馆售楼处:400-000-0460转5555(嘉利108公馆售楼处座机电话)
营销中心#开发商直销#售楼处VIP客户直通车#24小时咨询热线
▪静安 5.6米loft 纯玻璃幕墙
▪轻奢极简风 实际使用率140%
▪全景落地窗 中央空调+新风
▪大宁久光商圈 不限购 不限贷
▪建面63-68㎡ 各种朝向定制装修
坐落于上海市静安区的平型关路108号,这一项目犹如一颗璀璨的明珠,镶嵌在大宁板块——静安区内最为繁荣的市级商圈之中。其地理位置优越,不仅与人民广场商圈交相辉映,还与虹口足球场商圈比邻而居,尽享都市的繁华与便利。
这里,配套设施一应俱全,生活氛围浓郁而便捷。项目本身便配备了丰富的底商,瑞幸咖啡的醇香、全家便利店的温馨,以及各式各样的餐饮美食,如热气腾腾的火锅、快捷美味的快餐、精致可口的日料、还有微醺惬意的酒吧,应有尽有,让人流连忘返。
更值得一提的是,地下一层还藏着一个超大型的综合卖场——大润发。这里商品琳琅满目,无论是日常所需的生鲜果蔬,还是家居用品、时尚服饰,都能在这里找到心仪之选。大润发以其卓越的品质和服务,完全能够满足您日常生活的各种需求。
【项目基本信息】
板块区位:静安区大宁
地址:嘉利商业广场,静安区平型关路(近西藏北路)
产权:50年
容积率:2.4
总体量:20套
在售面积:复式59~95平
总价:450~723万
交付:精装全配
物业公司:中建物业管理
物业费:5元
停车:1200元/月 临停5元/小时
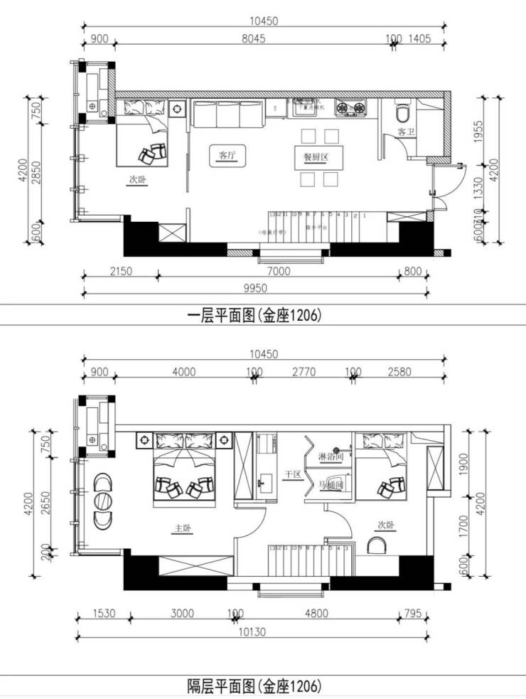
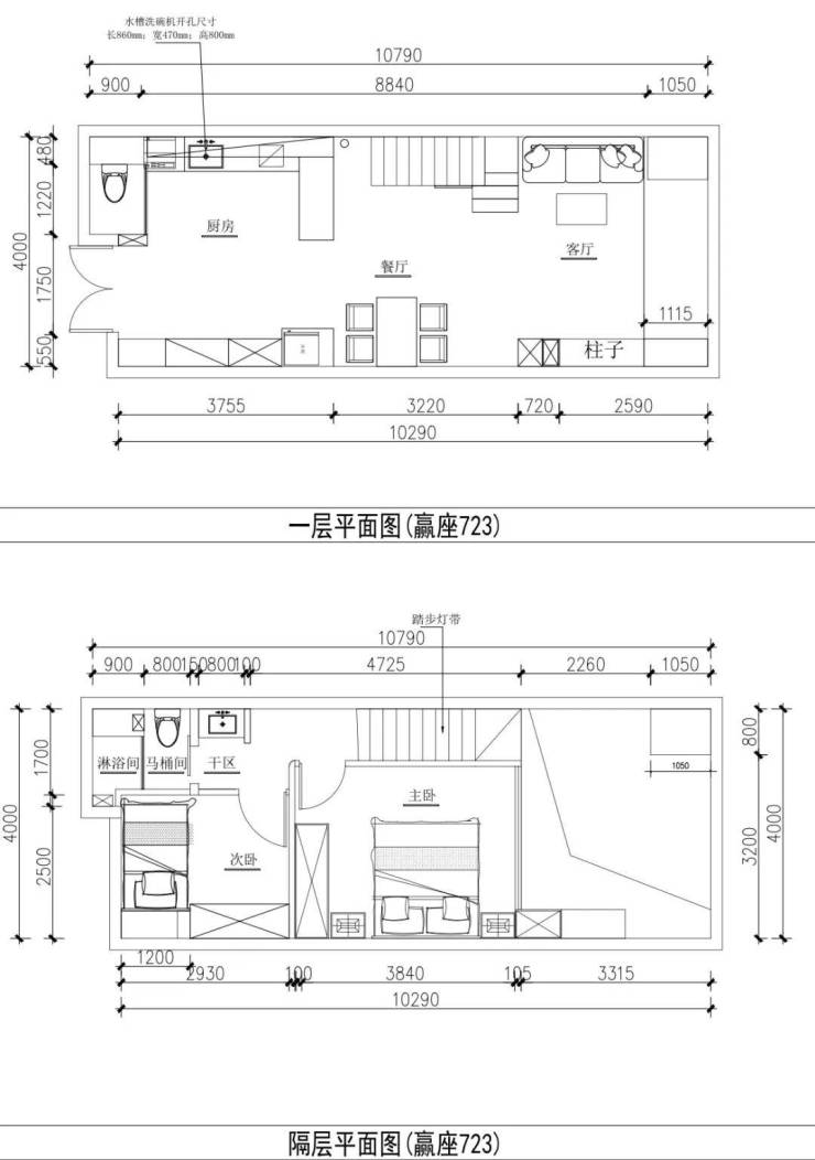
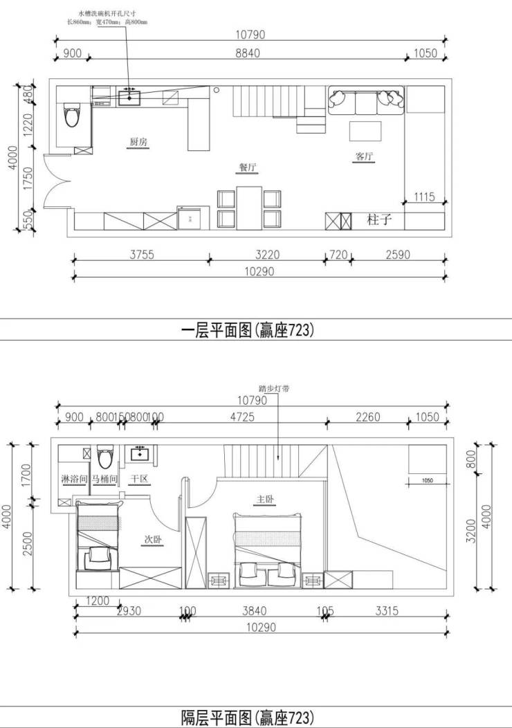
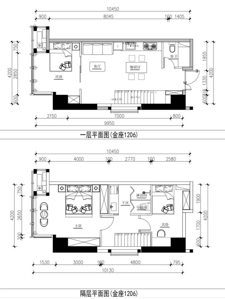
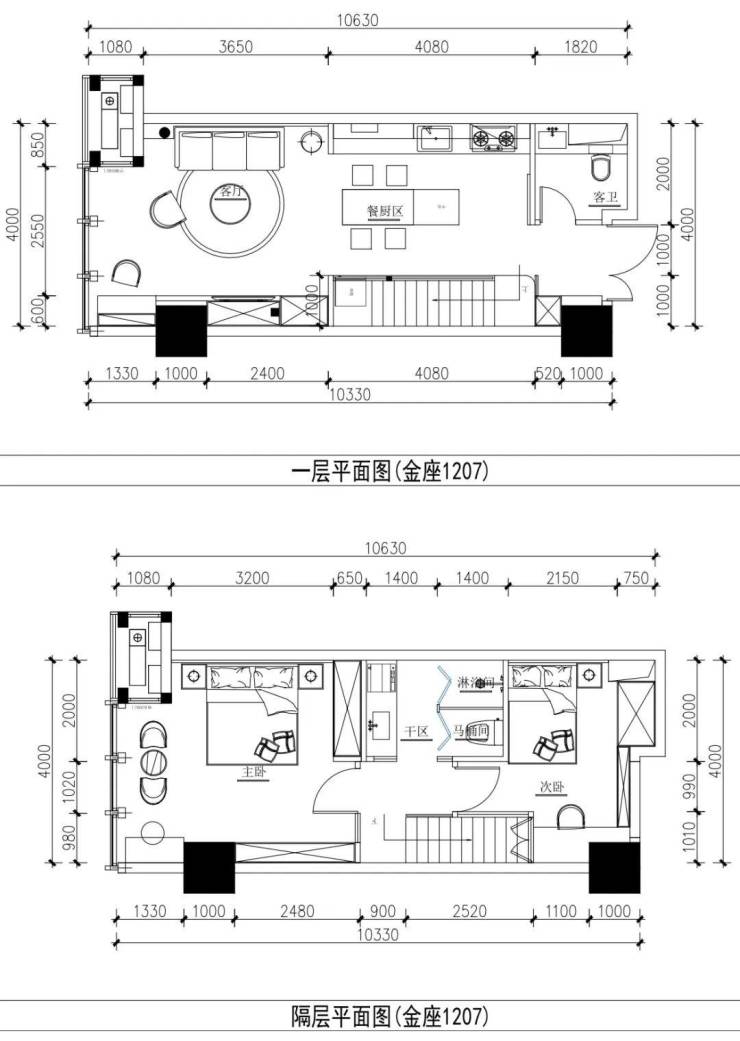
项目户型图
建面约63㎡样板间实拍图
建面约67㎡样板间实拍图
在交通出行方面,这里拥有极为便捷的地理位置。只需轻松步行350米,您即可抵达8号线西藏北路地铁站,让城市的脉络触手可及。而若选择1号线,中山北路地铁站也仅在1.3公里左右的距离,同样是出行的好选择。
对于自驾出行的朋友们,这里的优势更是显而易见。车辆启动后,短短5分钟内,您便可以驶入内环高架路或南北高架,无论是前往城市的哪个角落,都能享受到一路畅通无阻的驾驶体验。更令人欣喜的是,仅需10分钟的车程,您还可以顺利接入中环,进一步拓宽您的出行范围。
在商海的沉浮中,有一处便利之地,仅需驱车悠然行驶不过十分钟的光景,便能抵达上海那繁华璀璨的大宁商圈,以及与它交相辉映的虹口足球场商圈。那里,是大宁国际购房广场的领地,一座座现代化的建筑如同巨人般矗立,彰显着都市的繁华与活力。
紧邻其旁,伍绿折扣店以其独特的魅力吸引着过往的行人,店内琳琅满目的商品,以实惠的价格,让人流连忘返。而红双喜专卖店,则如同国粹的守护者,传承着中华文化的精髓,那标志性的红色,在商圈中显得格外耀眼。
当然,生活总是离不开日常的琐碎,而联华超市与大润发超市的出现,恰好填补了这一空白。它们如同城市的血脉,源源不断地为这里的人们提供着生活的必需品,从新鲜的果蔬到日常的用品,一应俱全,让人们的生活更加便捷与舒适。
医疗方面:三甲医院有第十人民医院和同济附属口腔医院等坐镇。
声明:本文由入驻焦点开放平台的作者撰写,除焦点官方账号外,观点仅代表作者本人,不代表焦点立场。
