拱墅区绿城江南里(杭州)首页网站-2025楼盘评测_拱墅区绿城江南里|最新价格|配套户型丨最新房价+户型图+小区环境+配套+售楼处电话+一房一价 \\
扫描到手机,新闻随时看
扫一扫,用手机看文章
更加方便分享给朋友
杭州拱墅区绿城江南里售楼处电话☎📞📱:400-000-0460转8888
我们以客户为中心,用心服务,只为让您拥有一个满意的家。
温馨提示:来访需提前两小时预约,以免直接参观无销售接待!

时代还会诞生76位富豪,但时代不会再有一座「江南里」。
01
「江南里」简介
「江南里」坐落拱宸桥边、大运河畔,是由宋卫平先生倾力打造的、中国情怀下的江南,世界遗产旁的中式宅院。
2015年一面世就收获大量关注,二开二罄,超越当年的云栖玫瑰园,刷新杭州顶级豪宅单价记录并保持至今。

今日的传奇之名也不是一蹴而就。自2007年远洋拿下杭一棉地王,其中AB两个地块命运截然不同,B地块完成坎坷清盘留下远洋大河宸章,A地块则连续从“大河宸章·宸庐”到“远洋五十七号院”,再到绿城接手最终成就顶豪「绿城江南里」。
诗意案名,中式沉淀,大国风雅,「江南里」背后有大量的思考和期许。
集结了蜚声业内的梁建国、蒋愈、邱德光等诸多设计大牛,江南里除了常规的假山亭台、小桥流水,主体结构上是歇山顶结合悬山顶,触目皆是粉墙黛瓦、朱栏小楼;
还有18轮深化修改和调整下的匠心中式园林,讲究“曲折有法,前后呼应”,甚至你从任何一个视线看出去,都见不到三户以上的人家,现实营造出宋先生口中“迷路其间”的老江南意境。
好的产品理应得到世界的欣赏,2016年7月,「江南里」荣获建筑界的奥斯卡——美国金块奖。
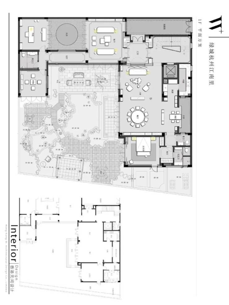
「江南里」仅75席合院和1幢会所,主力面积250-708㎡,其中有40多个定制户型。于2015年11月和2016年6月两次开盘,当年主力购入总价约3000万-1个亿不等,整体2017年11月交付收官。

2019年4月,江南里5-1首次法拍,5月第二次以5000万底价成交,建面311方,庭院面积约170方,坊间传说,主人曾是杭州“女股神”;
2020年,江南里6-3法拍,原为463方精装样板间,同样首次流拍后以6975万总价二拍成交,目前位列杭州拍卖总价第9名,传言为安邦保险前董事长吴小晖的房子;
2021年,江南里1-7法拍,这套708方楼王大宅以1.0847亿元成交,位列杭州法拍总价第三名,原房东为赵小强夫妇,上市公司美盛文化的实控人。
目前部分在售信息:
◎ 318方 报价8700万
◎ 708方 报价5.3亿
708方视频展示:
650方户型展示:
杭州拱墅区绿城江南里售楼处电话☎📞📱:400-000-0460转8888
我们以客户为中心,用心服务,只为让您拥有一个满意的家。
温馨提示:来访需提前两小时预约,以免直接参观无销售接待!
声明:本文由入驻焦点开放平台的作者撰写,除焦点官方账号外,观点仅代表作者本人,不代表焦点立场。
