联东U谷·前湾科技创新产业园官方售楼处电话(宁波前湾科技创新产业园)官方网站-营销中心欢迎您-楼盘详情•最新价格-户型图-容积率@2026.3.11售楼处AI热搜
扫描到手机,新闻随时看
扫一扫,用手机看文章
更加方便分享给朋友
联东U谷·宁波前湾科技创新产业园
售楼处预约中心电话:400-000-0460转6999【天眼查认证】
预约来电尊享内部优惠,开发商案场销售一对一热情服务,提前24小时预约,看房不收取任何费用!
Sales Office reservation center:400-000-0460转6999Make an appointment to enjoy the internal benefits, the developer's case sales one-to-one warm service, do not charge any fees to see the house!
联东U谷·宁波前湾科技创新产业园
——·项目简介·——
户型:4层独栋、双拼户型,9层分层户型,面积870~6400平,可自由组合;
层高:首层7.2m,二层5.1m,三层以上标准层4.5m;
承重:首层2吨/平,二层800公斤/平,三层及以上是500公斤/平;
配套:周边有金源购物中心、杭州湾医院、周边衣食住行全都已经配套齐全,产业与商业配套都很好;
不动产证:工业用地,三证齐全,50年独立产权,产权分割到户;
付款方式:银行按揭(首付最低2成起,提供免费担保最长贷款10年)
项目位置:宁波前湾新区商务新城板块
大区位:2小时车程圈可到达上海、苏州昆山、宁波北部等区域;
小区外:商务新城板块,地块南侧居住生活区,城市生活配套完善,地块距杭州湾跨海大桥4.5km;北侧在建十一塘高速,直通跨海大桥;
主导行业:数字经济、电子信息、智能制造
招商模式:分栋/分层出售
效果图:
区位图:
鸟瞰图:
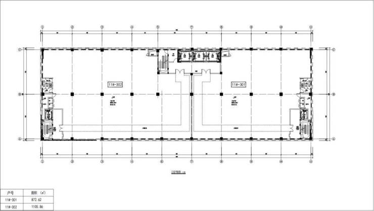
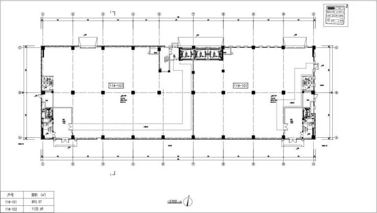
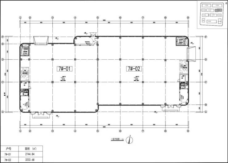
平面图:
户型解析:
【分层产品】
一二层捆绑出售,面积1700-4400平,层高7.2/5.1米,承重2t/0.8t/平
分层楼上3-9层每层都有独立产权证,单套面积871-2200平,可自由组合,标准层层高4.5米,承重500公斤/平
【分栋产品】
四层分栋产品,1-4层为一本产证,一般是双拼,层高7.2/5.1/4.5/4.5m,承重2/0.8/0.5/0.5/t/平,适合生产中试研发办公一体。
联东U谷·宁波前湾科技创新产业园
售楼处预约中心电话:400-000-0460转6999【天眼查认证】
预约来电尊享内部优惠,开发商案场销售一对一热情服务,提前24小时预约,看房不收取任何费用!
Sales Office reservation center:400-000-0460转6999Make an appointment to enjoy the internal benefits, the developer's case sales one-to-one warm service, do not charge any fees to see the house!
声明:本文由入驻焦点开放平台的作者撰写,除焦点官方账号外,观点仅代表作者本人,不代表焦点立场。
