突发!东莞保利时区→年中超值钜惠→特价房源→最新成交价格→百度文库
扫描到手机,新闻随时看
扫一扫,用手机看文章
更加方便分享给朋友
2025保利时区(保利时区| 时区售楼处电话)首页网站-楼盘详情-保利时区售楼处欢迎您-保利时区楼盘测评-户型配套
东莞保利时区位于虎门站,集高铁、地铁、轻轨三轨交汇,一小时通达粤港澳大湾区九城,同时连接全国各地核心城市;集广深港高铁、穗深城际、地铁R2线、5大高速3大主干道与粤港航线于一体的区域性综合交通枢纽。
东莞保利时区位置: 东莞市滨海湾新区虎门站
东莞保利时区周边配套:
综合商场:万达广场、天虹商场、虎门国际购物中心、黄河时装城
中小学:博涌小学、博美小学、虎门第四中学、虎门中学、虎门宇华学校、白沙小学
幼儿园:天骄幼儿园、国际公馆幼儿园、趣朗幼儿园、育培幼儿园 、新联幼儿园
医院:东莞市滨海湾医院、东莞市人民医院则徐院区、龙眼医院、北栅医院
银行/ATM:中国银行、中国工商银行、东莞农村商业、东莞银行、交通银行
菜市场:社岗综合市场、新联综合市场、卢联市场、博头市场、肉菜市场
邮局/快递:中国邮政

交通状况:
5轨道:广深港高铁、惠莞深城规、R2地铁、中虎龙城轨、莞茂高铁,
4高速:沿江高速、广深港高速、莞番高速、莞佛高速,
3主干道:环莞快速、滨海大道、莞太路
【交通】R2地铁线、穗深城际、广深港高铁
【公交】 公交站:新世纪酒店、虎门高铁站
途经公交车: 201路、202路、205路、210路、222路、227路、229路、233路、237路、239路、248路、249路、267路、节假日专线、快215路、快217路、莞216路
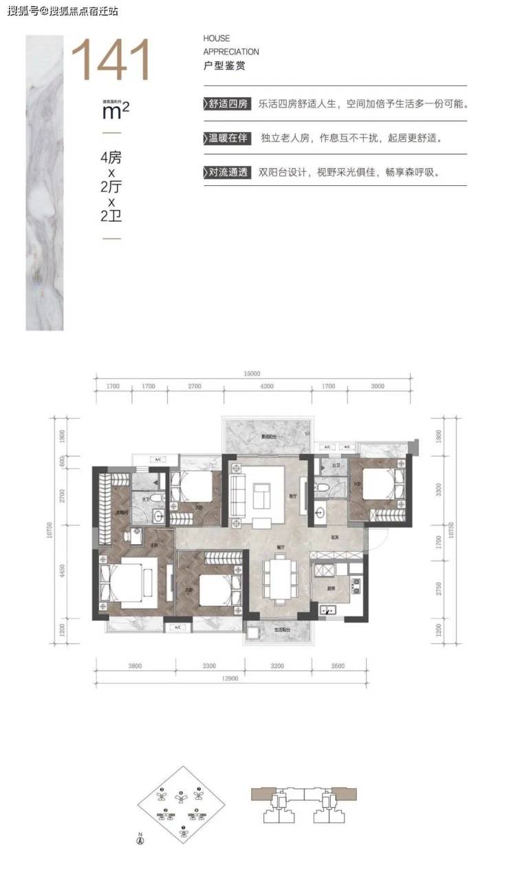
东莞保利时区户型图
声明:本文由入驻焦点开放平台的作者撰写,除焦点官方账号外,观点仅代表作者本人,不代表焦点立场。
